5190:事務所 紅谷ビル
| 賃料 | 40.6912万円 |
|---|---|
| 共益費・管理費 | 71,808円 |
| 所在地 | 千代田区麹町4丁目 |
| 交通 | 有楽町線 麹町駅 徒歩1分 半蔵門線 半蔵門駅 徒歩6分 |
| 間取 | |
| 総戸数 | |
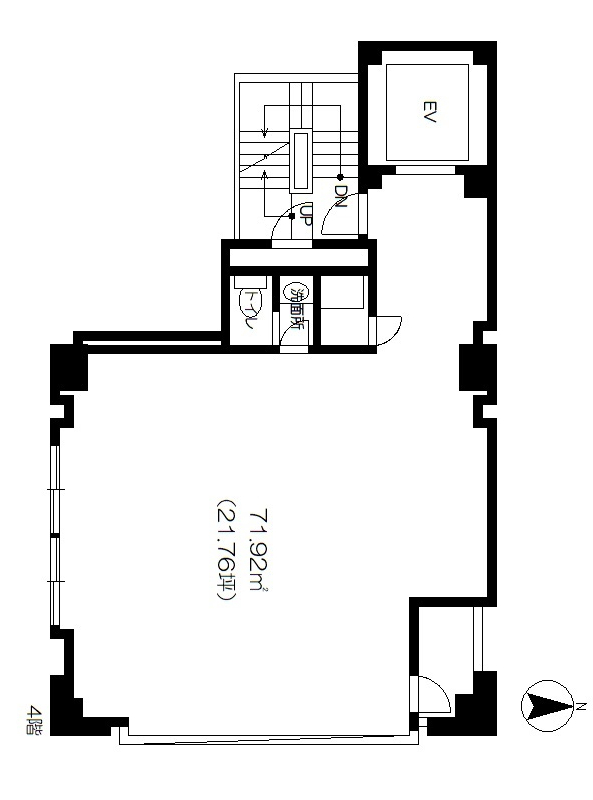
| 面積 | 71.92m²(21.75坪) |
| 築年月 | 1992 |
| 敷金 | - |
|---|---|
| 礼金 | 1ヶ月 |
| 保証金 | 10ヶ月 |
| 建物構造 | 鉄骨鉄筋コンクリート造 |
| 所在階 | 9階/10階建 |
| 学区 | |
| 取引態様 | 仲介 |
| 更新 | 2年 更新料:新賃料1ヶ月分(別途消費税) |
| 敷引・償却 | - |
|---|---|
| 火災保険 | 要加入- |
| 保証会社 | |
| 駐車場 | 無 |
| 諸費用 | |
| 入居時期 | 即時 |
特色
エレベータ、タイルカーペット、個別空調、室内トイレ1箇所、24時間利用可能 *要保証会社加入 *償却:解約時賃料11% *税抜賃料:369,920円(@17,000)、税抜共益費65,280円(@3,000)
コメント
↑↑ 麹町プリンス通り沿い 麹町駅徒歩1分の立地 1フロア1テナント ★紅谷ビル★ ↑↑




