4874:事務所 飯田ビル
| 賃料 | 55万円 |
|---|---|
| 共益費・管理費 | 55,000円 |
| 所在地 | 東京都千代田区六番町 |
| 交通 | 総武中央線 四ツ谷 徒歩4分 有楽町線 麹町駅 徒歩5分 |
| 間取 | |
| 総戸数 | |
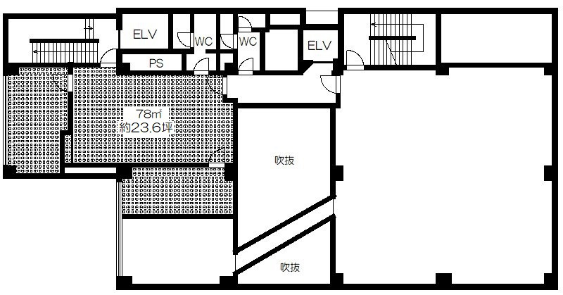
| 面積 | 78m²(23.59坪) |
| 築年月 | 1990/01 |
| 敷金 | 6ヶ月 |
|---|---|
| 礼金 | - |
| 保証金 | - |
| 建物構造 | 鉄筋コンクリート造 |
| 所在階 | 2階/4階建 |
| 学区 | |
| 取引態様 | 一般媒介 |
| 更新 | 可 2年 更新料:新賃料1ヶ月分(別途消費税) |
| 敷引・償却 | - |
|---|---|
| 火災保険 | 要加入- |
| 保証会社 | |
| 駐車場 | |
| 諸費用 | |
| 入居時期 | 2025年2月予定 |
特色
エレベータ2基、トイレ(共用/男女別)、個別空調、床タイルカーペット *共用施設:1階商談スペース(無料)、会議室・多目的ルーム・パーティールーム・アートギャラリー(有料)、ゴミ回収業者有(有料) *敷金償却:解約時賃料の1ヶ月分(税別) *税抜賃料:500,000円・消費税:50,000円/税抜管理費:50,000円・消費税:5,000円 *解約予告:6ヶ月前 *短期解約違約金:1年以内/月額税込賃料+税込管理費1ヶ月分 *要保証会社加入(フォーシーズ)
コメント
↑↑ 六番町 ギャラリー併設、吹き抜けのあるオフィスビルです ★飯田ビル★ ↑↑






