2051
|
半蔵門駅 |
千代田区一番町 |
− 2分 |
マンション |
¥232,000 - |
北西 |
1LDK 49.62m2 |
S47/08 |
5階/10階建 |
|
 
|
| ↑↑ 麹町小向かいの分譲マンション ゆとりあるエントランスなど管理状態良好です リノベーション済1LDK ★コープ野村一番町★ ↑↑ |
4163
|
半蔵門駅 |
千代田区麹町2丁目 |
− 2分 |
マンション |
¥398,000 ¥12,000 |
北 |
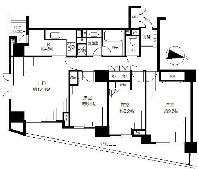
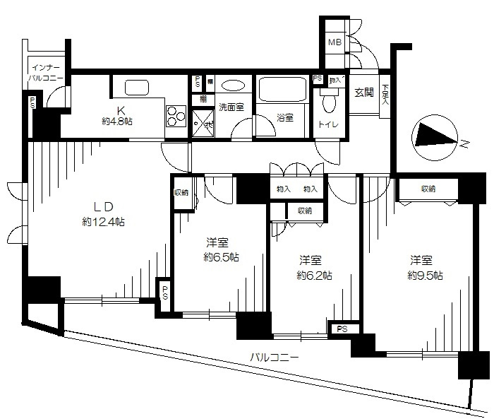
2LDK 71.74m2 |
H15/12 |
8階/13階建 |
|
 
|
| ↑↑ 半蔵門駅徒歩2分の好立地 15帖のリビング 浴室も広め ペット相談可 ★KDXレジデンス半蔵門★ ↑↑ |
5093
|
市ヶ谷 |
東京都千代田区四番町 |
− 4分 |
マンション |
¥470,000 - |
東 |
2LDK 60.6m2 |
H26/02 |
4階/15階建 |
|
 
|
| ↑↑ 2014年築 分譲マンション コンシェルジュサービス、免震構造など設備充実 定期賃借2年 ★ブランズ四番町★ ↑↑ |